1 Stephen Street
London, W1T 1AL
Please contact us for price
- Space Available8,066 - 47,999 ft² / 749 - 4,459 m² (approx. 74 - 445 desks)

Alex Browning
Director – Office Agency
Agent details

James Swan
Associate – Central London Markets
Agent details

Alex Mackay
Associate – Office Agency
Agent details
- Summary
- Facilities & services
- Energy rating
- Location
- Floor plans
- Brochures
- Agents
- Enquire
Summary
Multiple floors within the landmark, 1 Stephen Street located on the corner of Tottenham Court Road and Stephen Street.
- Newly refurbished floors
- Impressive entrance
- Striking facade and double-height reception
- Upgraded cycle and changing facilities
- Access to Derwent London's Members Lounge DL/78
- Private 2,500 sq.ft. terrace on the 9th floor
Description
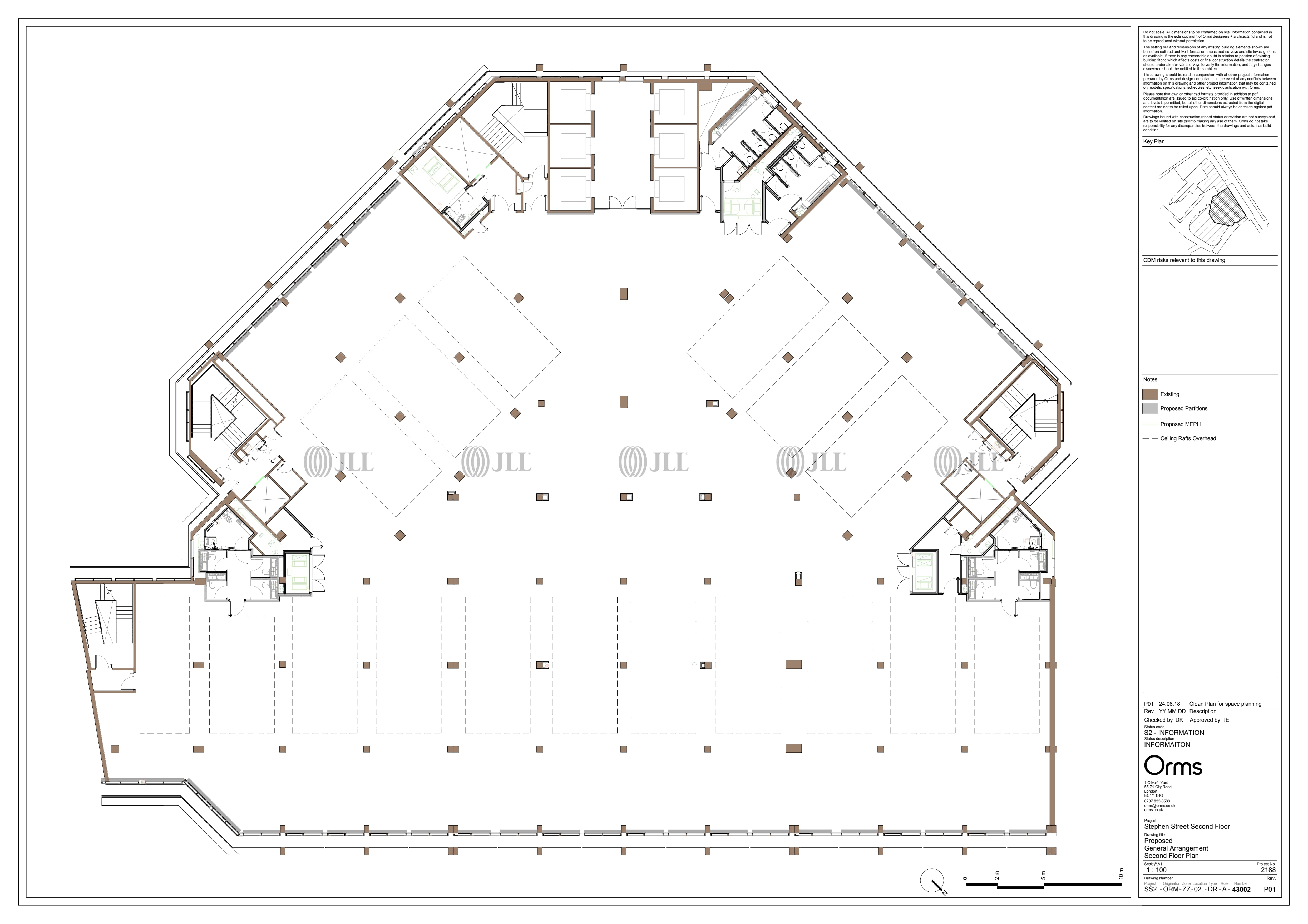
The newly refurbished second floor and seventh floor offices offer highly efficient CAT A floor plates with 1:10 occupational density. The scale of the space is accentuated by an excellent floor-to-soffit height of 3.4m and abundant natural light.
The specification includes suspended and linear recessed LED lighting and a 4-pipe fan coil system for heating and cooling. Occupiers will also benefit from newly refurbished washrooms, which incorporate a shower and accessible facilities.
Viewings
Strictly by appointment by the sole agents.
Nearest Tube Stations
5 Minute Walk
Tottenham Court Road Station
Goodge Street Station
10 Minute Walk
Oxford Circus Underground Station
Leicester Square Station
Covent Garden
15 Minute Walk
London Euston
Charing Cross Station
Russell Square Station
Piccadilly Circus Station
Holborn Station
Euston Square
Warren Street Station
Great Portland Street Station
Charing Cross
Euston
Accommodation
Energy rating
Location
Agents

Alex Browning
Director – Office Agency
Agent details

James Swan
Associate – Central London Markets
Agent details

Alex Mackay
Associate – Office Agency
Agent details
Disclaimer
JLL for themselves and for the vendors or lessors of this property whose agents they are, give notice that:
- The particulars are set out as a general outline only for guidance and do not constitute, nor constitute part of, an offer or contract;
- All descriptions, dimensions, references to condition and necessary permissions for use and occupation, and other details are believed to be correct, but any intending purchasers, tenants or third parties should not rely on them as statements or representations of fact but satisfy themselves that they are correct by inspection or otherwise;
- No person in the employment of JLL has any authority to make or give any representation or warranty whatever in relation to the property;
- Any images may be computer generated. Any photographs show only certain parts of the property as they appeared at the time they were taken;
- If the Property is in Scotland, this correspondence is expressly subject to completion of formal legal missives in accordance with Scots Law.
© 2026 Jones Lang LaSalle IP, Inc.









