16 Kirby Street
London, EC1N 8TS
£69.50 per ft²
- Space Available2,518 - 5,226 ft² / 234 - 486 m² (approx. 23 - 48 desks)

Claire Allen
Director – City Agency
Agent details

Honor Dunning
Associate
Agent details

Tori Wright
Graduate Surveyor
Agent details
- Summary
- Facilities & services
- Energy rating
- Location
- Floor plans
- Brochures
- Agents
- Enquire
Summary
Newly refurbished, fully fitted office suites on Level 3 and Level 4, ready December 2025 and Q3 2026 respectively.
- Boutique building, with recent upgrades, in a prime position 300m from Farringdon station.
- Newly refurbished, fully fitted office floors with new VRF Air conditioning
- Brilliant natural light with windows on both elevations
- Refurbished reception and common parts
- On-floor shower and WC facilities
- Secure cycle storage and lockers
- EPC A
Description
This boutique building with new façade and reception will provide two contiguous floors to the market. The 3rd floor which is slightly larger, will be newly refurbished with brand new VRF A/C, ready for Dec 2025/Jan 2026. The 4th floor can be taken back early and refurbished to allow an incoming occupier a bespoke fit out with timing from now until Q3 2026.
The floors are very efficient in terms of layout and with its shape is very well lite by natural light.
Works to the floors will be providing fully fitted floors with wifi connectivity to allow quick access.
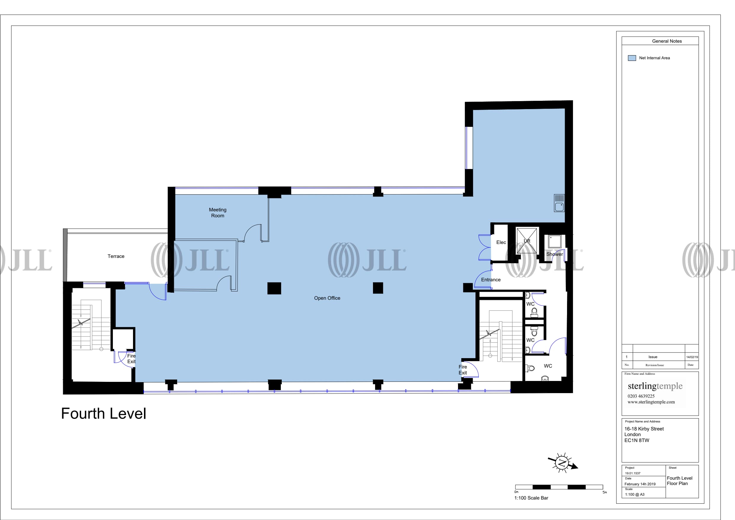
Level 4 has a 171 sq ft private terrace.
Accommodation
Energy rating
Location
Leather Lane food market and Exmouth Market are both a short distance away in addition to a number of other diverse food and beverage options nearby. There are also a number of gym suites within the immediate area.
Agents

Claire Allen
Director – City Agency
Agent details

Honor Dunning
Associate
Agent details

Tori Wright
Graduate Surveyor
Agent details
Disclaimer
JLL for themselves and for the vendors or lessors of this property whose agents they are, give notice that:
- The particulars are set out as a general outline only for guidance and do not constitute, nor constitute part of, an offer or contract;
- All descriptions, dimensions, references to condition and necessary permissions for use and occupation, and other details are believed to be correct, but any intending purchasers, tenants or third parties should not rely on them as statements or representations of fact but satisfy themselves that they are correct by inspection or otherwise;
- No person in the employment of JLL has any authority to make or give any representation or warranty whatever in relation to the property;
- Any images may be computer generated. Any photographs show only certain parts of the property as they appeared at the time they were taken;
- If the Property is in Scotland, this correspondence is expressly subject to completion of formal legal missives in accordance with Scots Law.
© 2026 Jones Lang LaSalle IP, Inc.








